199 departamentos en renta en Saltillo

ordenar por
renta bodega saltillo

74,594 FT2 COAH. SALTILLO Parque Ind. Finsa MPDIR LR 181022

Las Brisas, Saltillo
$ 648,504 MXN
  • 6930 m²
  • 93 MXN/m²
  • bien comunicado
74,594 FT2 COAH. SALTILLO Parque Ind. Finsa MPDIR LR 181022
9

Las Brisas, Saltillo Mapa

...BODEGA: NO ESPECIFICADO CAMBIOS X HORA SISTEMA CONTRA INCENDIO: MANGUERAS............................ SERVICIOS PUBLICOS: 1 CFE: KVA. KW. CAPACIDAD USO INDUSTRIAL 2 AGUA Y DRENAJE. CAPACIDAD INDUSTRIAL 3 GAS NATURAL. POR EVALUAR CAPACIDAD 4 OTROS SER...

Bodega en Renta en Brisas Poniente, Saltillo, Coahuila...

Saltillo
$ 1,381,717 MXN
  • 9700 m²
  • 142 MXN/m²
Bodega en Renta en Brisas Poniente, Saltillo, Coahuila...

Saltillo Mapa

...Bodega en renta en Brisas Poniente, Saltillo, Coahuila de Zaragoza. 9,700m² de terreno, 9,700m² de construcción...

Nave en renta en Brisas Poniente, Saltillo, Coahuila de...

INDUSTRIAL, Saltillo
$ 1,208,079 MXN
  • 23 baños
  • 9700 m²
  • 124 MXN/m²
Nave en renta en Brisas Poniente, Saltillo, Coahuila de...
5

INDUSTRIAL, Saltillo Mapa

...Bodega a base de 4 luminarias 150 W en interior y 2 luminarias 80 W. Cuenta con preparación de ductos para Instalación de cámaras de vigilancia y para colocación de anuncio luminoso 3D. PARARRAYOS: Cuenta con sistema de protección para área de 200 me...

Terreno comercial o industrial en renta 3,000 m2 en Blvd...

Oriente, Saltillo
$ 90,000 MXN
  • desarrollos
Terreno comercial o industrial en renta 3,000 m2 en Blvd...
8

Oriente, Saltillo Mapa

...bodega ⚡ Servicios básicos disponibles Acceso para tráfico pesado Gran aforo vehicular Ideal para: • Patio de trailers • Almacén abierto • Desarrollo de bodega Conectado con toda la ciudad, el área industrial de GM, el poniente de Saltillo y la salid...

Casa en renta en Las Quintas, Saltillo, Coahuila de Zaragoza

residencial, Saltillo
$ 27,500 MXN
  • 3 habitaciones
  • 4 baños
  • 200 m²
  • 137 MXN/m²
nuevo
Casa en renta en Las Quintas, Saltillo, Coahuila de Zaragoza
16

residencial, Saltillo Mapa

...Casa en renta Con muebles $27,500 Sin muebles $22,000 En fraccionamiento Las Quintas (al norte de la ciudad) VIGILANCIA 24 HRA...cina integral - Comedor -Estancia de TV -Baño de servicio con bodega -Lavandería, -Cochera techada para 2 autos -IDEAL PARA ...

Local Comercial en Esquina – ¡Visibilidad y ubicación...

Saltillo
$ 25,000 MXN
  • 288 m²
  • 86 MXN/m²
  • garage
Local Comercial en Esquina – ¡Visibilidad y ubicación...
8

Saltillo Mapa

...288 m² de construcción (2 niveles) Ubicación inmejorable: En el corazón de la Col. Fundadores Cerca de: Bodega Aurrera, Blvd. Morelos, Blvd. Otilio González, Blvd. Fu...to disponible en calles cercanas, perfecto para tus clientes. Renta: $25,000 MXN/mes...

EXCELENTE BODEGA EN RENTA, AMPLIA Y BIEN UBICADA. AL...

Oriente, Saltillo
$ 20,000 MXN
  • 400 m²
  • 50 MXN/m²
EXCELENTE BODEGA EN RENTA, AMPLIA Y BIEN UBICADA. AL...
4

Oriente, Saltillo Mapa

...bodega amplia y bien ubicada en Saltillo? Ponemos en renta bodega de 400 m² al oriente de la ciudad, ideal para tu empresa o negocio que requiere espacio, accesibilidad y seguridad. ✅ Espacio amplio y funcional para almacenamiento, producción o logís...

RENTA DE BODEGA INDUSTRIAL ATRÁS DE STELLANTIS DERRAMADERO

sur, Saltillo
$ 340,000 MXN
  • 4 baños
  • 4000 m²
  • 85 MXN/m²
nuevo
RENTA DE BODEGA INDUSTRIAL ATRÁS DE STELLANTIS DERRAMADERO
16

sur, Saltillo Mapa

...Renta de bodega industrial de 4,000 m2 atrás de Stellantis Derramadero, cuenta con 4 baños y 2 regaderas, oficina de 140m2, amplias vialidades, área de carga y descarga, 4 anderes de carga, patio adicional disponible con costo extra, 4 accesos con co...

RENTA DE BODEGA INDUSTRIAL DE 3000 M2 ATRÁS DE...

sur, Saltillo
$ 240,000 MXN
  • 6 baños
  • 3000 m²
  • 80 MXN/m²
nuevo
RENTA DE BODEGA INDUSTRIAL DE 3000 M2 ATRÁS DE...
9

sur, Saltillo Mapa

...Renta de bodega Industrial, atrás de Stellantis Derramadero, cerca de más de 10 parques industriales, cuenta con 6 baños y 2 regaderas, área de carga y descarga, 2 anderes de carga, 6 estacionamiento, patio adicional con costo extra, electricidad, 4...

RENTA DE LOCAL EN COL VIRREYES COLONIAL

Saltillo, Saltillo
$ 30,000 MXN
  • 340 m²
  • 88 MXN/m²
RENTA DE LOCAL EN COL VIRREYES COLONIAL
7

Saltillo, Saltillo Mapa

...¡Local en renta en esquina, ideal para oficinas o negocio! 400 m² de terreno 340 m² de construcción Recepción 2 medios baños 2 oficinas privadas 1 bodega amplia...

OFICINAS EN RENTA, COL. KIOSCO, SALTILLO

Ampliacion Kiosco, Saltillo
$ 75,000 MXN
  • 4 baños
  • 200 m²
  • 375 MXN/m²
OFICINAS EN RENTA, COL. KIOSCO, SALTILLO
14

Ampliacion Kiosco, Saltillo Mapa

... oficinas en excelente ubicaci?n EDIFICIO EN RENTAEdificio de 2 plantas, 4 oficinas en...LANTA BAJAOficina (1) de 6x5 con clima y bodega, oficina (2) de 3x5m con clima, pr...ra, $60,000 mas impuestos..Publicado por SALTILLO a traves de Inmomap en TuPortalO...

OFICINAS EN RENTA, COL. KIOSCO, SALTILLO

Ampliacion Kiosco, Saltillo
$ 75,000 MXN
  • 4 baños
  • 200 m²
  • 375 MXN/m²
OFICINAS EN RENTA, COL. KIOSCO, SALTILLO
13

Ampliacion Kiosco, Saltillo Mapa

... que buscas, oficinas en excelente ubicaci?n EDIFICIO EN RENTAEdificio de 2 plantas, 4 oficinas en...LANTA BAJAOficina (1) de 6x5 con clima y bodega, oficina (2) de 3x5m con clima, pr...ra, $60,000 mas impuestos..Publicado por SALTILLO en universoinmuebles...

OFICINAS EN RENTA, COL. KIOSCO, SALTILLO

Saltillo, Saltillo
$ 75,000 MXN
  • 4 baños
  • 200 m²
  • 375 MXN/m²
OFICINAS EN RENTA, COL. KIOSCO, SALTILLO
14

Saltillo, Saltillo Mapa

...RENTA Edificio de 2 plantas, 4 oficinas en total, muy bien ubicado, ideal para consultorios u oficinas, recién remodeladas, equipado con cisterna, bomba de agua. PLANTA BAJA Oficina (1) de 6x5 con clima y bodega, oficina (2) de 3x5m con clima, privad...

Nave Industrial de Alto Desempeño en Ubicación...

Norte, Saltillo
$ 520,000 MXN
  • 5000 m²
  • 104 MXN/m²
  • desarrollos
  • garage
Nave Industrial de Alto Desempeño en Ubicación...
24

Norte, Saltillo Mapa

...Bodega en Excelente ubicación con área de oficinas, área de estacionamiento, Desarrollo Privado. Excelente opción. Precio de Renta: $520,000 aprox Superficie: 5,078.55 m² de Área Superficie: 202.75 m² de Oficinas. Caracteristicas: - 2 Rampa de carga...

CASA EN RENTA CON RECAMARA EN PLANTA BAJA, MISIONES...

Residencial Las Misiones, Saltillo
$ 38,000 MXN
  • 5 habitaciones
  • 4 baños
  • 420 m²
  • 90 MXN/m²
  • terraza
CASA EN RENTA CON RECAMARA EN PLANTA BAJA, MISIONES...
19

Residencial Las Misiones, Saltillo Mapa

...CASA EN RENTA MISIONES Hermosa residencia construida con la mejor calidad, amplias areas en cada uno de sus espacios.Tiene una...dos autos. Jard?n 70 m2 aproxTerraza y Palapa 30m2 2 ?reas de bodegaPLANTA BAJAVest?buloOficina ? recamaraBa?o completoSala ...

LOCAL COMERCIAL ZONA CENTRO PLANTA ALTA $5,500

Saltillo, Saltillo
$ 5,500 MXN
  • 55 m²
  • 100 MXN/m²
  • garage
LOCAL COMERCIAL ZONA CENTRO PLANTA ALTA $5,500
8

Saltillo, Saltillo Mapa

...bicado en planta alta con un area de 55m2 Cuenta con medio baño y bodega para enseres. El precio incluye agua y mantenimiento (alumbrado y limpieza) RENTA MENSUAL: $5,500 ☎️Comunícate a Enfoque Inmobiliario y un agente te dara atención personalizada!...

Bodega Industrial en Renta Al Norte de Saltillo

Norte, Saltillo
$ 95,000 MXN
  • 742 m²
  • 128 MXN/m²
  • desarrollos
Bodega Industrial en Renta Al Norte de Saltillo
14

Norte, Saltillo Mapa

...Bodega en Excelente ubicación con área de oficinas, área de estacionamiento, Desarroll Privado. Excelente opción. Precio de Renta: $95,000 Superficie: 742.50 m² de Á...NOS Excelente ubicación en Zona Norte de saltillo con rápido acceso a Blvd. Nazari...

LOCAL COMERCIAL EN RENTA, SEGUNDA PLANTA, INCLUYE AGUA Y...

Saltillo, Saltillo
$ 5,500 MXN
  • 47 m²
  • 117 MXN/m²
LOCAL COMERCIAL EN RENTA, SEGUNDA PLANTA, INCLUYE AGUA Y...
10

Saltillo, Saltillo Mapa

...RENTA, SEGUNDA PLANTA Ubicado en el centro de Saltillo en planta alta con un area de 47m2 Cuenta dos cubículos, medio baño y bodega para enseres. El precio incluye agua y mantenimiento (alumbrado y limpieza) RENTA MENSUAL: $5,500 ☎️Comunícate a Enfoq...

Departamento en Renta — Parque Centro

Saltillo, Saltillo
$ 35,000 MXN
  • 2 baños
  • 129 m²
  • 271 MXN/m²
  • terraza
  • amueblado
  • internet
  • aire acondicionado
Departamento en Renta — Parque Centro
11

Saltillo, Saltillo Mapa

...Departamento en Renta — Parque Centro (Edificio E “Innvira 2”)129.6 m² incluida terraza • Totalmente amueblado Incluye mantenimiento e internet Distribución• 2 recámara...po ludoteca en nivel superior• Sala de TV y sala de reuniones Bodega 4m² en Sotano...

Excelente Bodega con Luz Trifasica, en Blvd. Principal...

Saltillo
$ 40,000 MXN
  • 420 m²
  • 95 MXN/m²
  • garage
Excelente Bodega con Luz Trifasica, en Blvd. Principal...
7

Saltillo Mapa

...Bodega con Excelente ubicación en Privada de Bodegas con Acceso por Blvd. Otilio, Luz Trifásica, 8 metros de altura, doble acceso, cuenta con suficiente estacionamiento y conectividad a la zona Sur de Saltillo. MEDIDAS: Superficie Total: 400 m² Ofici...

Bodega Unica en Lib. Oscar Flores Tapia, Oficinas, Luz...

Saltillo
$ 160,000 MXN
  • 2300 m²
  • 69 MXN/m²
Bodega Unica en Lib. Oscar Flores Tapia, Oficinas, Luz...
12

Saltillo Mapa

...Bodega: 2,000 m² Oficinas: 300 m.² Aprox. CARACTERISTICAS: Bodega con todas las instalaciones Listas. Uso de Nave Industrial PLANTA BAJA - Oficinas en Área frontal - Oficinas en Área de Bodega - Recepción - Diversas areas de oficinas. - Baños para Mu...

Local en renta en Plaza Fundadores

Saltillo
$ 15,000 MXN
  • 2 baños
  • 192 m²
  • 78 MXN/m²
  • garage
Local en renta en Plaza Fundadores
11

Saltillo Mapa

...Local en renta de 192 m2, incluye 2 oficinas y área de recepción, 2 baños, bodega y área de comedor con fregadero. Amplio estacionamiento en plaza...

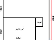
Excelente Bodega en Renta de 700 m²

Saltillo
$ 60,000 MXN
  • 700 m²
  • 85 MXN/m²
Excelente Bodega en Renta de 700 m²
10

Saltillo Mapa

...Renta: $60,000.00 (SESENTA MIL PESOS 00/100 M.N.) Superficie Total: 700 m² Aprox. Frente: 18 m. Fondo: 37 m. M2 Terreno: 700 m² Aprox. M2 Construcción: 700 m² Aprox. + Detalles - Disponibilidad para instalación de Luz Trifásica - 1 Baño - Estacionami...

Casa renta al sur en esquina

Sur, Saltillo
$ 10,500 MXN
  • 2 habitaciones
  • 2 baños
  • 170 m²
  • 61 MXN/m²
  • garage
Casa renta al sur en esquina
14

Sur, Saltillo Mapa

..., cocina con cocineta y estufa, baño completo, cochera trasera con portón. Planta alta: recámara principal con baño, clóset y balcón, recámara secundarias, con clóset, lavandería con área de tendido y pequeña bodega abierta. PARA TRABAJADORES $18,000...

Bodega con Excelente Ubicacion en Renta

Saltillo
$ 125,685 MXN
  • 950 m²
  • 132 MXN/m²
Bodega con Excelente Ubicacion en Renta
11

Saltillo Mapa

Especificaciones Generales PRECIO $132.30 POR M² Área Total Terreno: 1,300.00 m 2 Area de Oficinas (Mezzanine): 30.66 m 2 Altura Libre: 8.176 - 8.79 m Area Construida: 950.44 m 2 Altura Máxima: 9.81 m Cubierta a un agua - Areas de Operación -...